Perched at the highest point of its 25,000 m² plot, this newly built luxury finca in Campanet offers an exceptional blend of Mallorcan countryside charm and contemporary sophistication. Scheduled for completion december 2025, latest in spring 2026, the property spans 455 m² of built surface and has been designed with meticulous attention to detail, showcasing premium materials, modern comforts, and a serene atmosphere in complete harmony with its natural surroundings.
From its elevated position, the finca enjoys sweeping views of the Tramuntana mountains while remaining just minutes from the nearest village. All everyday necessities in Inca are only a 10-minute drive away, and the beaches, restaurants, and marinas of Alcudia and Pollensa can be reached within 20 minutes—offering the perfect balance of privacy and convenience.
The single-level layout is conceived to maximise natural light, comfort, and ease of living. Thoughtfully divided into day, night, and guest areas, the home offers a seamless flow throughout. Each of the four spacious bedrooms features its own en-suite bathroom and direct access to a private patio, while the master suite also includes an adjoining office. A guest toilet adds further practicality for family and visitors. Curved architectural forms, earthy tones, mint accents, and several light-filled patios contribute to an elegant and calming ambience.
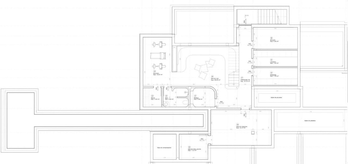
A standout feature of the property is the multifunctional basement, designed for wellness, leisure, and lifestyle. It includes a private cinema room, a dedicated gym, and two saunas, along with an atmospheric bodega. Practical additions such as a fully equipped “dirt kitchen,” laundry room, storage areas, and technical rooms ensure that daily life remains effortless.
The stunning T-shaped 20 meter long pool begins at the edge of the living room and extends gracefully into the Mediterranean garden, where the views open toward the mountains. Designed in a natural country style, the outdoor spaces blend seamlessly with the surrounding landscape.
Equipped with underfloor heating via heat pump, ducted air conditioning, solar power, microcement interior floors, natural stone exterior flooring, its own water supply, parking for five vehicles, and an energy rating B, this finca offers every modern comfort in an idyllic rural setting.
This exceptional property is an oasis of wellbeing that meets the highest standards, making it the ideal year-round residence or luxurious countryside retreat in the heart of Mallorca.
Campanet
Plot 25.000m2
Built 455m2
4 bedrooms
4 bathrooms
Guest toilet
Underfloor heating
Airconditioning
Own well
Solar power
Pool (20 meter long)
Gym
Sauna
Fireplace
Bodega
Storage




