In the very center of Alaró lies this extraordinary townhouse, more than 200 years old and lovingly restored to combine authentic charm with modern luxury. Every detail of the renovation was guided by a deep respect for the property’s history, while ensuring the highest standards of comfort.
Original features such as stone arches, vaulted ceilings, natural stone columns, and handcrafted wooden doors have been beautifully preserved. Traditional tile floors have been restored to their former glory, while modern touches such as underfloor heating on the ground floor, radiators in every room, and triple-glazed windows provide year-round comfort and efficiency.
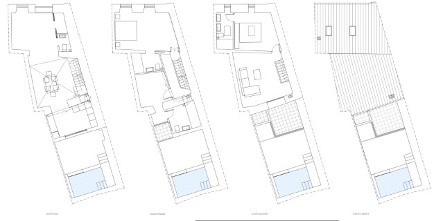
The ground floor offers a welcoming living and dining area, a guest toilet, and a sleek modern kitchen with direct access to a peaceful courtyard. Here, a swimming pool and lounge area invite you to relax in complete privacy.
On the first floor, two elegant bedrooms each enjoy their own bathroom, along with access to a sunny private terrace. The top floor is home to a spacious third bedroom with bathroom, a second living room, and a west-facing terrace—perfect for watching Alaró’s stunning sunsets.
This unique townhouse is a rare opportunity to own a piece of history, thoughtfully reimagined for contemporary living in one of Mallorca’s most sought-after villages.
Alaro
Plot 87m2
Built 205m2
3 bedrooms
4 bathrooms
Underfloor heating
Triple glazed windows
Balconies
Airconditioning
Pool
Completely restored with lots of authentic features


