This is your chance to create the home you’ve always dreamed of, right in the heart of San José. With the building license already approved and most of the groundwork complete, construction can begin immediately—making this a truly rare and hassle-free opportunity.
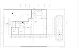
The project has been carefully designed to offer the perfect balance of modern comfort and Mediterranean charm. The home features four spacious bedrooms, each with its own en-suite bathroom.
On the ground floor, the open-plan living and kitchen area flows directly out to the private garden and pool, creating a natural space for entertaining and relaxing. A ground-floor suite adds versatility, whether for guests or as a home office. Upstairs, the main suite boasts its own terrace with sweeping views of the surrounding countryside, a tranquil retreat where you can enjoy peaceful mornings and sunsets.
Located in a quiet residential setting yet just a short stroll from restaurants, supermarkets, and all essential amenities, the property offers unmatched convenience without sacrificing privacy. A garage space is also included in the license for added practicality.
Opportunities like this are rare in San José. A prime location, an approved license, and the ability to start building immediately make this an exceptional investment and a lifestyle choice you won’t want to miss.
Ibiza – San Jose
Plot 516m2
To be build 300m2
4 bedrooms
4 bathrooms
Pool
Basement
Building license available, ready to start immediately
Excavation works are already completed
Beautiful views






