This exceptional 810 m² plot presents a rare opportunity to create a bespoke residence in one of Mallorca’s most desirable coastal locations. Nestled in the exclusive enclave of Cas Català, the property enjoys both privacy and tranquility while being just moments from the sea, Palma’s vibrant city life, and the island’s finest marinas, restaurants, and beach clubs.
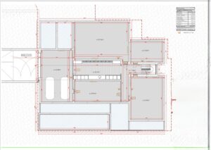
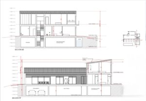
A building license is already in place for a striking 392 m² villa with a separate guesthouse. The planned design includes expansive living and entertaining areas, generous bedroom suites, and seamless connections to landscaped outdoor spaces. A private pool will form the centerpiece of the residence, offering an idyllic setting for relaxation and Mediterranean living at its finest.
Cas Català is renowned for its privileged setting — quiet and secluded, yet only minutes from Palma and the international airport. For discerning buyers, this plot represents not only the chance to build a tailor-made luxury home but also to secure a rare investment in one of Mallorca’s most prestigious addresses.
Cas Catala
Plot 810m2
Approved license to build in total 392m2
5 bedrooms
5 bathrooms
Pool
Separate guesthouse
Spa area
Walking distance to the sea and beach













